Wropo logo
بيشپه بيرغ فرانسه فرانسه
یو اعلان پوسټ کړئ
  1. کور
  2. ريښتینی دولت
  3. فلیټونه
مهرباني وکړئ خبر اوسئ چې په خبر اوسئ نور وګوره

موږ د خپلو کاروونکو مستقیم پوهه نلرو، او نه هم موږ د دوی فعالیتونه کنټرول کوو. خلکو ته د پیسو لیږلو څخه مخنیوی وکړئ کله چې نه پوهیږئ. تل د آنلاین لیږدونو کې احتیاط وکړئ او د پرمخ تللو دمخه معلومات تایید کړئ. لږ وګوره

Apartment complex for sale in Roquebrune-Cap-Martin, French Riviera

3,850,000€

فلیټونه, Roquebrune-Cap-Martin, IMG-0
فلیټونه, Roquebrune-Cap-Martin, IMG-1
فلیټونه, Roquebrune-Cap-Martin, IMG-2
فلیټونه, Roquebrune-Cap-Martin, IMG-3
فلیټونه, Roquebrune-Cap-Martin, IMG-4
فلیټونه, Roquebrune-Cap-Martin, IMG-5
فلیټونه, Roquebrune-Cap-Martin, IMG-6
فلیټونه, Roquebrune-Cap-Martin, IMG-7
فلیټونه, Roquebrune-Cap-Martin, IMG-8
ژباړه: بيرغ PS اصلي

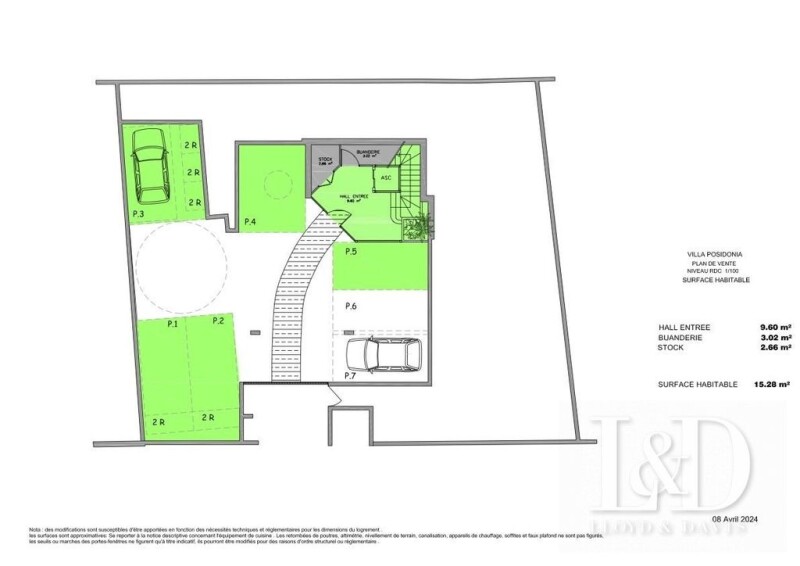
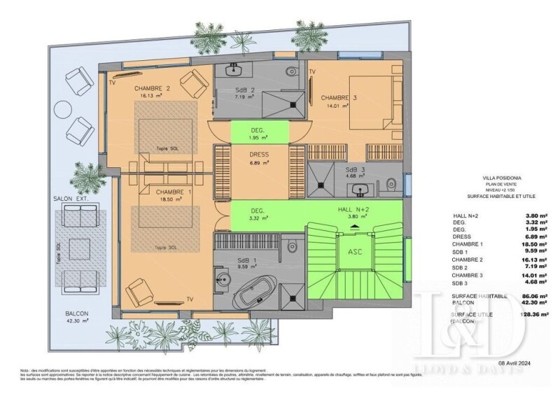
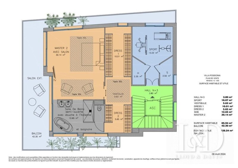
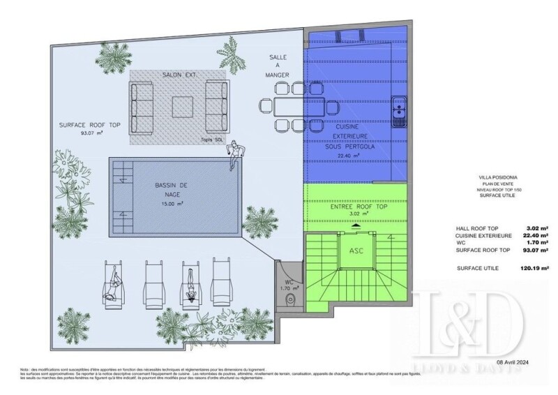
Roquebrune Cap Martin, just 5 minutes by car or boat from Monaco and Menton, attracts many visitors every year, whether for holidays or business reasons. This residence ready to be built on 5 levels and with contemporary architecture, located just a few steps from the Carnolés beaches and in the immediate vicinity of all amenities, has been designed with luxurious services for demanding customers. Designed to accommodate up to 8 people in optimal comfort, the residence has a large living room and a fitted and equipped kitchen on the 1st level. The second level has 3 beautiful bedrooms with private bathrooms. A third level offers a superb en suite bedroom, a dressing room, as well as a gym, a hammam and a sauna. The surface area of each floor is approximately 100m2. Each level has a terrace on 3 sides. The rooftop and last level, has a superb two-zone swimming spa and its solarium, a summer kitchen, all planted to preserve privacy. A laundry room is located on the ground floor. For parking, 4 parking spaces and 3 garages equipped with fast charging stations for electric vehicles are provided. Finally, an elevator connects the ground floor to the roof top, serving all levels. The property is secured with intercom and video surveillance. The residence is located on a plot of 400m2 and the whole is enclosed by walls. With its 275 m² of living space and 500 m² of useful surface area, this property stands out for its exceptional value: you will not find comparable projects in the sector at this amount (i.e. €7,700 per square meter for the 500m2 useful area). Building permit cleared of any appeal. Contact us to find out all the details. * The interior visuals are projections Fees payable by the seller. Blank DPE. Information on the risks to which this property is exposed is available on the Géorisques website: georisques.gouv.fr. Your LLOYD & DAVIS advisor: Isabelle LEYMARIE Sales agent (Individual company) RSAC 527 691 158 Fréjus RCP 101PGMAN-AW20134 Apivia.

Additional Property Information:
• External size: 400 m²
• Size: 275 m²
• Elevator: Yes
• Reference: 4936-COMPANY34605JRW
• Year of construction: 2025
• Car parking: Yes

بيه: 3,850,000€
Whatsapp: نه
کټګورۍ: فلیټونه
ډول: مسلکي
ښار: Roquebrune-Cap-Martin
سیمه: پرووانس-الپس-کوت دازور
حواله: FR-05D56D93DE
وروستی اوسمهال: 5 مياشتي دمخه
لیدنه: 117
Avatar Bg

اوس زنګ ووهئ ترڅو د پلورونکي سره مستقیم وصل کړئ.

نور اعلانونه
4 room  Apartment for sale in Roquebrune-Cap-Martin, France

9

4 room Apartment for sale in Roquebrune-Cap-Martin, France

2,480,000€

Roquebrune-Cap-Martin

ريښتینی دولت » فلیټونه

مسلکي

5 مياشتي دمخه

5 room  Apartment for sale in Roquebrune-Cap-Martin, France

9

5 room Apartment for sale in Roquebrune-Cap-Martin, France

3,200,000€

Roquebrune-Cap-Martin

ريښتینی دولت » فلیټونه

مسلکي

5 مياشتي دمخه

3 bedroom  Apartment for sale in Roquebrune-Cap-Martin, France

9

3 bedroom Apartment for sale in Roquebrune-Cap-Martin, France

5,899,000€

Roquebrune-Cap-Martin

ريښتینی دولت » فلیټونه

مسلکي

5 مياشتي دمخه

6 room  Apartment for sale in Roquebrune-Cap-Martin, French Riviera

9

6 room Apartment for sale in Roquebrune-Cap-Martin, French Riviera

1,600,000€

Roquebrune-Cap-Martin

ريښتینی دولت » فلیټونه

مسلکي

5 مياشتي دمخه

2 room  Flat for sale in Roquebrune-Cap-Martin, French Riviera

9

2 room Flat for sale in Roquebrune-Cap-Martin, French Riviera

1,800,000€

Roquebrune-Cap-Martin

ريښتینی دولت » فلیټونه

مسلکي

5 مياشتي دمخه

1 bedroom  Apartment for sale in Promenade de Cap Martin, 11-13, Roquebrune-Cap-Martin, French Riviera

9

1 bedroom Apartment for sale in Promenade de Cap Martin, 11-13, Roquebrune-Cap-Martin, French Riviera

480,000€

Roquebrune-Cap-Martin

ريښتینی دولت » فلیټونه

مسلکي

5 مياشتي دمخه


Wropo logo
  • ښارونه
  • سیمې
  • هیوادونه
  • د محرمیت تګلاره
  • شرایط او شرایط
  • F.A.Q.
  • بيه
  • تماس

Wropo د اعلانونو د خپرولو یو پلاتفورم دی. موږ د درېیم‌ګړی اعلان‌ورکوونکو له خوا ثبت شوي هیڅ محصول یا خدمت ملکیت نه لرو، نه یې اداره کوو، او نه یې تضمین کوو.

© 2025 Wropo. ټول حقونه خوندي دي.

کټګورۍ غوره کړئ